Logo

Wybierz odpowiedni wariant dla siebie

58 m² metraż
3 pokoje
1 łazienki
1 kondygnacje
30° kąt dachu

Cena standard surowy zamknięty

od 241 400 PLN brutto (8%)

Porównaj standardy wykończenia

Cena standard deweloperski

od 282 400 PLN brutto (8%)

Porównaj standardy wykończenia

Wizualizacje są jedynie poglądowe i nie stanowią oferty handlowej w rozumieniu art. 66 § 1 kodeksu cywilnego oraz innych właściwych przepisów prawnych.

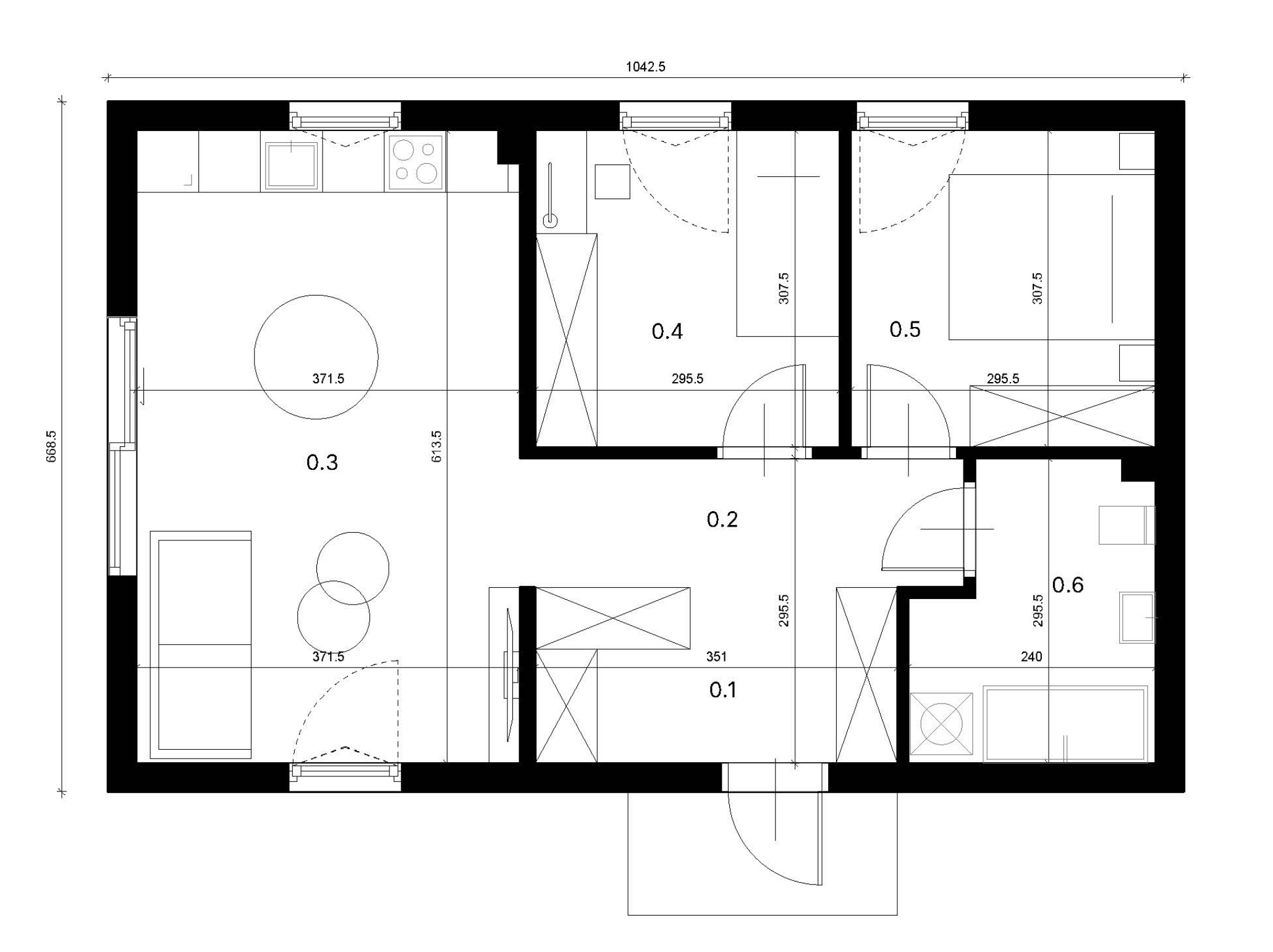
Rzuty | GC70 A | Parter

Nr Pomieszczenie Powierzchnia
0.1 Hol wejściowy 5.98 m²
0.2 Komunikacja 5.38 m²
0.3 Salon z aneksem 22.74 m²
0.4 Pokój 9.09 m²
0.5 Pokój 9.06 m²
0.6 Łazienka 6.13 m²
Suma powierzchni 58.38 m²

standardy wykończenia

Porównaj standardy wykończenia

Fundamenty

Zdjęcie humusu na odkład

SSZ
Deweloperski

Wykonanie zagęszczonego nasypu z piasku

SSZ
Deweloperski

Izolacja termiczna XPS 50

SSZ
Deweloperski

Płyta fundamentowa żelbetowa na podkładzie z chudego betonu

SSZ
Deweloperski

Izolacja przeciwwilgociowa płyty

SSZ
Deweloperski

Izolacja przeciwwysadzinowa z XPS

SSZ
Deweloperski

Ściany zewnętrzne

Poszycie od wewnątrz płytami gipsowo-kartonowymi

SSZ
Deweloperski

Paroizolacja

SSZ
Deweloperski

Płyta OSB

SSZ
Deweloperski

Konstrukcja drewniana 60×160 C24, wypełniona wełną mineralną

SSZ
Deweloperski

Termoizolacja 80 mm

SSZ
Deweloperski

Tynk elewacyjny na warstwie zbrojącej

SSZ
Deweloperski

Ściany wewnętrzne

Konstrukcja 60×120 (konstrukcyjna) / 60×80 (działowa) C24

SSZ
Deweloperski

Izolacja z wełny mineralnej

SSZ
Deweloperski

Poszycie obustronne płytą gipsowo-kartonową

SSZ
Deweloperski

Poszycie jednostronnie ścian konstrukcyjnych płytą gipsowo-kartonową

SSZ
Deweloperski

Stropy

Konstrukcja wiązarowa

SSZ
Deweloperski

Izolacja termiczna min. 25 cm

SSZ
Deweloperski

Paroizolacja

SSZ
Deweloperski

Poszycie płytami gipsowo-kartonowymi

SSZ
Deweloperski

Dach

Łaty i kontrłaty

SSZ
Deweloperski

Membrana wiatroizolacyjna

SSZ
Deweloperski

Konstrukcja wiązarowa drewniana klasy C24

SSZ
Deweloperski

Pokrycie dachu

Dach dwuspadowy, kryty blachodachówką lub blachą na rąbek

SSZ
Deweloperski

Odwodnienie dachu rynnami i rurami spustowymi (stal powlekana / plastik)

SSZ
Deweloperski

Kolorystyka według projektu wykonawczego

SSZ
Deweloperski

Drzwi wejściowe

Drzwi zewnętrzne z zabezpieczeniem przeciwwyważeniowym

SSZ
Deweloperski

Umax drzwi zewnętrznych ≤ 1,3 W/m²K

SSZ
Deweloperski

Kolorystyka według projektu wykonawczego

SSZ
Deweloperski

Okna i drzwi balkonowe

Stolarka okienna PVC

SSZ
Deweloperski

Umax okien ≤ 0,9 W/m²K

SSZ
Deweloperski

Wyłaz

Wyłaz systemowy na poddasze techniczne

SSZ
Deweloperski

Posadzki

Na parterze izolacje termiczne i podkład z jastrychu

SSZ
Deweloperski

Instalacja wodna i kanalizacyjna

Rozprowadzenia rur wody, kanalizacji, CO na parterze

SSZ
Deweloperski

Podejścia wody i kanalizacji wyprowadzone na ścianach i zakorkowane

SSZ
Deweloperski

Podejścia kanalizacji wyprowadzone ponad płytę fundamentową

SSZ
Deweloperski

Na parterze instalacja ogrzewania podłogowego wodnego

SSZ
Deweloperski

Wyprowadzone przyłącza wodnego

SSZ
Deweloperski

Instalacja elektryczna

Kable instalacji elektrycznych i teletechnicznych w peszlach (ściany, konstrukcja stropu)

SSZ
Deweloperski

Wykonany przepust dla przyłącza elektrycznego

SSZ
Deweloperski

Puszki zamontowane w ścianach

SSZ
Deweloperski

Kable opisane obwodami wg projektu i doprowadzone do miejsca tablicy rozdzielczej

SSZ
Deweloperski

Grochowski Construction zastrzega sobie prawo do zmiany producenta i rodzaju materiałów budowlanych, gwarantując takie same parametry.

zalety

Dlaczego warto wybrać nasze domy

Naturalne materiały

Budujemy z surowców przyjaznych środowisku.

Zgodność z naturą

Nasze domy harmonijnie wpisują się w otoczenie.

Niskie koszty utrzymania

Energooszczędne technologie zmniejszają wydatki.

Powtarzalność produkcji

Dopracowane modele zapewniają niezawodność.

Długa gwarancja

Gwarancja na konstrukcję wynosi aż 50 lat.

Szybki czas realizacji

Dom gotowy w tygodnie, nie w miesiące.

Bezpieczeństwo

Minimalizacja prac na działce i ryzyka budowy.

Przewidywalne koszty

Stała cena bez niespodzianek jak w budowie tradycyjnej.

Dobra izolacja i ciepło

Domy tworzą korzystny mikroklimat.

proces współpracy

Twoja przestrzeń w kilku krokach

Krok 1

Wybór projektu i podpisanie umowy

Na początku wspólnie analizujemy Twoje potrzeby i oczekiwania, aby dopasować idealny projekt domu modułowego. Omawiamy wszystkie szczegóły techniczne, estetyczne oraz harmonogram działań. Po zaakceptowaniu koncepcji podpisujemy umowę, która precyzuje zakres i terminy realizacji.

placeholder

Krok 2

Uzyskanie pozwolenia na budowę

Na tym etapie przygotowujemy pełną dokumentację projektową, zgodną z wymaganiami prawa budowlanego. Otrzymasz od nas kompletny projekt, który stanowi podstawę do złożenia przez Ciebie wniosku o pozwolenie na budowę we właściwym urzędzie.

placeholder

Krok 3

Rozpoczęcie produkcji domu w fabryce

Gdy formalności są zakończone, rusza proces prefabrykacji elementów Twojego domu w naszej nowoczesnej fabryce. Produkcja w kontrolowanych warunkach pozwala zachować najwyższą jakość i precyzję wykonania. Równolegle przygotowujemy logistykę dostaw na miejsce inwestycji.

placeholder

Krok 4

Prace ziemne i fundamenty

W tym czasie na działce inwestora prowadzone są prace ziemne oraz wykonanie fundamentów pod dom modułowy. Dbamy o precyzję i solidność podstaw, które są kluczowe dla trwałości konstrukcji. Prace przebiegają zgodnie z harmonogramem i nadzorem kierownika budowy.

placeholder

Krok 5

Montaż domu na działce

Gotowe moduły zostają przetransportowane i zmontowane bezpośrednio na działce. Cały proces trwa zaledwie kilka dni, minimalizując uciążliwości dla inwestora. Po zakończeniu montażu dom ma już docelowy kształt i bryłę.

placeholder

Krok 6

Prace instalacyjne i wykończeniowe

Na koniec przeprowadzamy kompleksowe instalacje oraz wykończenia wnętrz zgodnie z ustalonym standardem. Każdy detal jest dopracowany, by dom był gotowy do zamieszkania. Po odbiorze technicznym przekazujemy Ci klucze do nowego, w pełni wykończonego domu.

placeholder

dodatkowe usługi

Sprawdź jak możemy Ci jeszcze pomóc

Doradztwo kredytowe
Analiza działki
Adaptacja projektu

najczęściej zadawane pytania

Rozwiewamy Twoje wątpliwości

Czy domy są całoroczne?

Ile trwa budowa?

Czy możemy dokonywać zmian na etapie budowy?

Jakie są koszty budowy domu?

Czy domy modułowe są trwałe?

Czy można modyfikować dom modułowy po wybudowaniu?

Jaki system ogrzewania najlepiej sprawdzi się w domu modułowym?

Jakie są zalety domów modułowych?

Czy płyta fundamentowa jest w cenie?

Czy płyta fundamentowa jest ciepła?

Wizytówka kontaktowa, mężczyzna

kontakt

Skontaktuj się z nami już dziś!

Formularz kontaktowy
powrót na górę